Bucureştiul nou

Discuţii generale despre municipiul Bucureşti şi Judeţul Ilfov

Re: Bucureştiul nou

Mesajde 133 » Sâm 24 Oct 2020, 23:01

Ce mai vedem prin Bucuresti. Soseaua Viilor (si adiacentele) intre Istrati si Nasaud se umple de blocuri.
Fişiere ataşate
P_20201024_164908.jpg
P_20201024_165703.jpg
Pe la Tudor Vladimirescu...
P_20201024_180543.jpg
Si desigur... One Cotroceni...
https://www.flickr.com/photos/146817144@N02/
Purcelul mov presedinte = inflatie 500%
Avatar utilizator
133
 
Mesaje: 4861
Membru din: Joi 07 Apr 2016, 22:04

Re: Bucureştiul nou

Mesajde AndreiSYA » Dum 25 Oct 2020, 07:15

În loc sa creeze locuri de joaca, ei construiesc blocuri.
Avatar utilizator
AndreiSYA
 
Mesaje: 1046
Membru din: Sâm 09 Mar 2019, 23:11
Localitate: Ilfov

Re: Bucureştiul nou

Mesajde 133 » Dum 25 Oct 2020, 08:22

Locurile de joaca se fac in general intre blocurile vechi, unde strada si spatiul verde e domeniul public. Blocurile noi (cu exceptia ANL) sunt investitii private. Unii isi fac si mici spatii de joaca, sunt ansambluri care au, acolo unde sunt mai mult de 6-7 blocuri intr-o singura faza. In sectoarele 2, 3, 4, 5, 6 a inceput sa toarne primariile locuri de joaca electorale tot la doua-trei blocuri. Bineinteles ca este un chiloman permanent indiferent de ora iar noaptea stau in ele alcolistii si drogatii la taifasuri prelungite... Nu mai spui ca le-au facut garduri mai ceva ca la puscarie. Dar colorate curcubeu.
Oricum este discutabila treaba asta cu leganelele langa fiecare bloc, este o solutie de avarie pentru ca societatea nu-si permite sa plece mai des in concediu si n-are timp nici sa duca copilul intr-unul din parcurile mari, asa ca "il leaga de copac" langa bloc, intre garduri, ca pe catel, sa se joace acolo in timp ce face "mama mancare". Din pacate abundenta asta electorala de astfel de locuri de joaca langa blocuri este un semn rau, de regres spre situatia pe care eu ca si copil o regaseam in anii '90, cand toti copii erau "in parcare" langa bloc, cand strada incepea sa-si piarda siguranta si nu aveai curaj sa scapi copilu' din ochi.
https://www.flickr.com/photos/146817144@N02/
Purcelul mov presedinte = inflatie 500%
Avatar utilizator
133
 
Mesaje: 4861
Membru din: Joi 07 Apr 2016, 22:04

Re: Bucureştiul nou

Mesajde 133 » Lun 26 Oct 2020, 21:05

De prin urbe...
Fişiere ataşate
P_20201025_140813.jpg
Calea Vacaresti, mai exact Strada Povestei.
P_20201025_141914.jpg
Strada Cararuia.
P_20201025_142528.jpg
Strada Martisor. Zona continua sa acumuleze constructii noi... de diverse marimi...
P_20201025_142532.jpg
P_20201025_143246.jpg
Spitalul de stomatologie al balosului.
P_20201025_143738.jpg
O reluare a unui proiect mai vechi. Fostul CityMall, de fapt o relicva a regimului comunist trecuta prin dubla conversie si parcarea noua..
P_20201025_143800.jpg
P_20201025_143832.jpg
P_20201025_150929.jpg
Afi Tech Park 2 creste ca ciuperca dupa ploaie.
P_20201025_151007.jpg
P_20201025_155156.jpg
Clusterul residence de la intersectia Ghencea cu Brasov inca n-a ajuns la forma finala...
P_20201025_155252.jpg
P_20201025_155517.jpg
https://www.flickr.com/photos/146817144@N02/
Purcelul mov presedinte = inflatie 500%
Avatar utilizator
133
 
Mesaje: 4861
Membru din: Joi 07 Apr 2016, 22:04

Re: Bucureştiul nou

Mesajde 133 » Mie 28 Oct 2020, 20:56

De prin urbe. Se construieste in dementa. Oare ce-o sa se intample cu traficul? :twisted:
Fişiere ataşate
P_20201028_135631.jpg
Bd. Gheorghe Sincai.
P_20201028_135636.jpg
P_20201028_161454.jpg
In imediata vecinatate pe Str. Avalansei...
P_20201028_161500.jpg
P_20201028_161517.jpg
P_20201028_161601.jpg
P_20201028_161604.jpg
P_20201028_161644.jpg
P_20201028_160119.jpg
Cauzasi, in spatele blocurilor de pe Bd. Unirii.
P_20201028_160200.jpg
P_20201028_160226.jpg
https://www.flickr.com/photos/146817144@N02/
Purcelul mov presedinte = inflatie 500%
Avatar utilizator
133
 
Mesaje: 4861
Membru din: Joi 07 Apr 2016, 22:04

Re: Bucureştiul nou

Mesajde 133 » Sâm 31 Oct 2020, 21:41

One Floreasca.
Fişiere ataşate
P_20201029_132729.jpg
P_20201029_132733.jpg
P_20201029_132927.jpg
P_20201029_131052.jpg
Bonus: roata mare din Parcul Tei vazuta din zona carboBamboo.
https://www.flickr.com/photos/146817144@N02/
Purcelul mov presedinte = inflatie 500%
Avatar utilizator
133
 
Mesaje: 4861
Membru din: Joi 07 Apr 2016, 22:04

Re: Bucureştiul nou

Mesajde 133 » Dum 01 Noi 2020, 23:10

Un nou pol de constructii noi: Sos. Viilor - Sos. Progresului. Multe cladiri in curd de demolare si multe terenuri goale.

Incepand de la Istrati cu Color Residences si demolarea Industria Iutei si cam tot ce este spre Filaret, trecand pe la fostul Vulcan cu Afi Tech Park, Green Gate si ajungand la Razoare cu One Cotroceni si Cortina Academy. In tot acest interval mai sunt alte si alte puz-uri pentru constructii noi.
Fişiere ataşate
P_20201101_135021.jpg
Incepem de pe Viilor intre Istrati si Colegiul Viilor.
P_20201101_135029.jpg
Demolare proaspata.
P_20201101_135119.jpg
P_20201101_135123.jpg
P_20201101_135204.jpg
Vis-a-vis, spre Filaret... macarale.
P_20201101_135257.jpg
P_20201101_135300.jpg
P_20201101_135335.jpg
Par a fi trei niveluri subterane. Deci astia n-ar trebui sa aiba probleme cu aprcarea.
P_20201101_135412.jpg
Mai multe demolaciuni proaspete.
P_20201101_135415.jpg
P_20201101_135512.jpg
Adiacent la Viilor, pe Fabrica de Chibrituri...
P_20201101_135537.jpg
Langa fabrica de dulciuri... un urias teren gol. Deocamdata.
P_20201101_140144.jpg
Ne intoarcem in Sos. progresului, intre Spataru Preda si Nasaud.
P_20201101_140148.jpg
P_20201101_140154.jpg
P_20201101_140158.jpg
P_20201101_140200.jpg
P_20201101_140303.jpg
P_20201101_140312.jpg
P_20201101_140943.jpg
Mai departe, la Afi Tech Park 2.
https://www.flickr.com/photos/146817144@N02/
Purcelul mov presedinte = inflatie 500%
Avatar utilizator
133
 
Mesaje: 4861
Membru din: Joi 07 Apr 2016, 22:04

Re: Bucureştiul nou

Mesajde 133 » Dum 01 Noi 2020, 23:19

Continuare.
Fişiere ataşate
P_20201101_140946.jpg
P_20201101_141001.jpg
P_20201101_141025.jpg
P_20201101_141031.jpg
P_20201101_160354.jpg
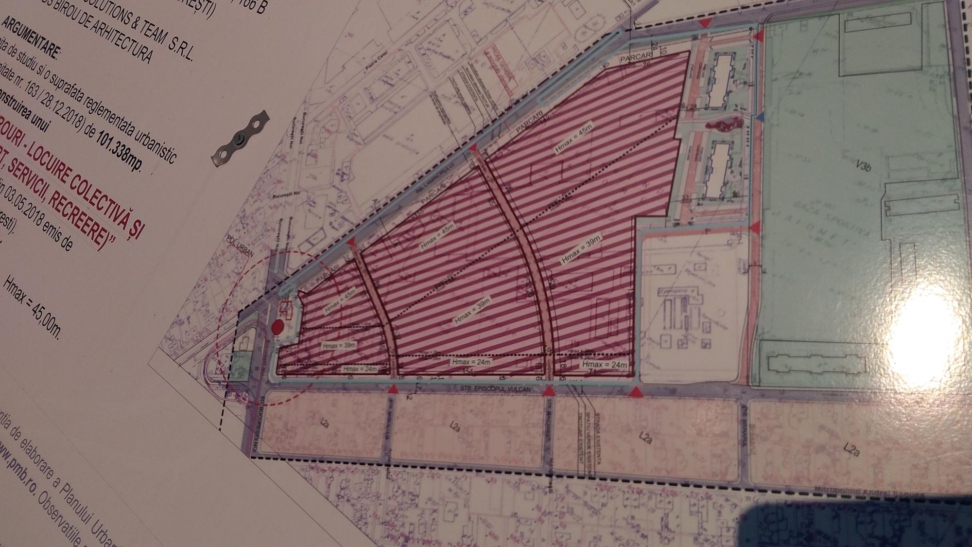
Facem un salt mare de la Afi Tech Park pana la AFI Laminorului!
P_20201101_160434.jpg
P_20201101_160451.jpg
P_20201101_160746.jpg
P_20201101_161217.jpg
Tot prin zona...
P_20201101_161702.jpg
O ruina ce va sa cada... cu proiect nou!
P_20201101_162258.jpg
Bucurestii Noi e plin de bloculete din astea noi de 4-5 etaje. Toate strazile din Damaroaia sunt pline ochi de astfel de aparitii, tot ce se varsa in Jiului de asemenea.
P_20201101_162446.jpg
P_20201101_162505.jpg
Si cu sticla.
P_20201101_163330.jpg
Dupa care... BOOM! Str. Jiului.
P_20201101_163514.jpg
P_20201101_163517.jpg
Bonus: se reasfalteaza.
P_20201101_163541.jpg
P_20201101_163517.jpg
P_20201101_163541.jpg
P_20201101_163658.jpg
https://www.flickr.com/photos/146817144@N02/
Purcelul mov presedinte = inflatie 500%
Avatar utilizator
133
 
Mesaje: 4861
Membru din: Joi 07 Apr 2016, 22:04

Re: Bucureştiul nou

Mesajde 133 » Dum 01 Noi 2020, 23:29

O ultima imagine de la Jiului. Dupa care mergem pe Expozitiei.
Fişiere ataşate
P_20201101_163830.jpg
P_20201101_170519.jpg
Mda... dilema mare... spitale noi sau... biserici noi in curtea spitalelor vechi...?
P_20201101_170632.jpg
Ceva mai excentric...
P_20201101_170728.jpg
P_20201101_170751.jpg
Dupa care... Atenor, dar nu foarte dornici de publicitate...
P_20201101_170811.jpg
P_20201101_170816.jpg
P_20201101_171024.jpg
Peste drum...
P_20201101_171214.jpg
Swisotel. Am aritmii cand ma uit la cladirea asta pe parter si mezanin inalte...
P_20201101_171246.jpg
P_20201101_171605.jpg
Iar spre capat... clusterul din care mai lisesc cateva piese... Deocamdata.
P_20201101_171636.jpg
P_20201101_171831.jpg
P_20201101_171839.jpg
https://www.flickr.com/photos/146817144@N02/
Purcelul mov presedinte = inflatie 500%
Avatar utilizator
133
 
Mesaje: 4861
Membru din: Joi 07 Apr 2016, 22:04

Re: Bucureştiul nou

Mesajde 133 » Dum 01 Noi 2020, 23:35

Si inca o vizita in zona Grozavesti-Orhideelor.
Fişiere ataşate
P_20201101_175416.jpg
Vastint, Calea Plevnei.
P_20201101_175520.jpg
P_20201101_175540.jpg
In zare cladirile The Bridge. Cu reflectoare puternice pe ele.
P_20201101_175612.jpg
P_20201101_175624.jpg
P_20201101_175741.jpg
P_20201101_175902.jpg
P_20201101_180644.jpg
Langa Universitatea Ecologica... se defriseaza. Urmeaza... bloace. Oricum trebuie sa fii super "smart" sa faci bloace gard in gard cu CET Grozavesti. Noroc ca nu mai pot sa aduca pacura cu trenul la terminalul Cotroceni...
P_20201101_180722.jpg
https://www.flickr.com/photos/146817144@N02/
Purcelul mov presedinte = inflatie 500%
Avatar utilizator
133
 
Mesaje: 4861
Membru din: Joi 07 Apr 2016, 22:04

Re: Bucureştiul nou

Mesajde Dr2005 » Lun 02 Noi 2020, 00:05

133 scrie:Un nou pol de constructii noi: Sos. Viilor - Sos. Progresului. Multe cladiri in curd de demolare si multe terenuri goale.


În sfârşit îşi vor dovedi utilitatea cârdurile de tramvaie de acolo. Asta dacă nu cumva dezvoltatorii de clădiri de birouri vor proceda ca AFI Tech Park şi vor asigura un autobuz până la Unirii pentru angajaţi, pentru că e sub nivelul unui corporat(r)ist să meargă cu tramvaiul, mai ales cu 32.

133 scrie: Langa Universitatea Ecologica... se defriseaza. Urmeaza... bloace. Oricum trebuie sa fii super "smart" sa faci bloace gard in gard cu CET Grozavesti. Noroc ca nu mai pot sa aduca pacura cu trenul la terminalul Cotroceni...

Aia e o felie din fostul parc Grozăveşti, cea retrocedată pe vremea lui Rareş Mănescu. Păcură va veni anul ăsta, CFR S.A. a început curăţarea liniei. Oricum, păcura e doar pentru urgenţe, iar anul ăsta nu ştiu dacă va fi folosită, din simplul fapt că anul trecut a luat ELCEN 2 amenzi pentru asta, pe motiv că a poluat prea mult (neoficial ar fi sesizat Garda de Mediu chiar Firea).
Avatar utilizator
Dr2005
Site Admin
 
Mesaje: 2748
Membru din: Dum 21 Oct 2012, 22:25
Localitate: Bucureşti, Sector 6, Drumul Taberei

Re: Bucureştiul nou

Mesajde 133 » Lun 02 Noi 2020, 08:19

Imi vine greu sa cred ca va mai ajunge vreun tren vreodata la gara Cotroceni, acolo nu trebuie "curatata" linia, trebuie dezgropata! :o
https://www.flickr.com/photos/146817144@N02/
Purcelul mov presedinte = inflatie 500%
Avatar utilizator
133
 
Mesaje: 4861
Membru din: Joi 07 Apr 2016, 22:04

Re: Bucureştiul nou

Mesajde Dr2005 » Lun 02 Noi 2020, 11:48

Trenuri oricum nu pot circula pe acolo, ci doar convoaie de manevră, linia şi macazurile aferente fiind grupă de linii a staţiei Bucureşti Vest. Staţia Cotroceni ca staţie nu mai există de mult.
Avatar utilizator
Dr2005
Site Admin
 
Mesaje: 2748
Membru din: Dum 21 Oct 2012, 22:25
Localitate: Bucureşti, Sector 6, Drumul Taberei

Re: Bucureştiul nou

Mesajde 133 » Lun 02 Noi 2020, 15:06

Terminalul de descarcare este practic deja lipit de blocuri. Nu prea cred ca mai primeste vreun tren plin de pacura liber sa ajunga langa ele, imi imaginez ca mai exista si cercopiteci care arunca mucurile de tigara pe geam. Nu ca ar mai putea fizic, repet, santierele din zona au ingropat la propriu sinele in pamant si resturi de betoane!
https://www.flickr.com/photos/146817144@N02/
Purcelul mov presedinte = inflatie 500%
Avatar utilizator
133
 
Mesaje: 4861
Membru din: Joi 07 Apr 2016, 22:04

Re: Bucureştiul nou

Mesajde 133 » Vin 06 Noi 2020, 20:29

Gata si cladirea Industria Iutei este istorie. Practic la intersectia Progresului cu Istrati nu mai este in suspans decat terenul de pe coltul din interiorul curbei tramvaiului, care este inteleg al Romtelecom, a si fost scos la vanzare la un moment dat dar cred ca n-au reusit sa-l vanda.
Fişiere ataşate
P_20201106_144517.jpg
P_20201106_144534.jpg
Vis-a-vis, Color Residences, cand va fi.
P_20201106_144551.jpg
P_20201106_144603.jpg
P_20201106_144644.jpg
P_20201106_144650.jpg
P_20201106_144731.jpg
P_20201106_144739.jpg
P_20201106_145141.jpg
Mai departe, intre Spataru Preda si Nasaud... primele armaturi ce se vad dejea peste gard.
P_20201106_145320.jpg
P_20201106_145327.jpg
P_20201106_150146.jpg
Mai departe, Afi Tech Park 2, inca in sistem turbo.
P_20201106_150202.jpg
P_20201106_150222.jpg
P_20201106_151241.jpg
La Sebastian, langa Prosper.
P_20201106_164454.jpg
Si One Cotroceni.
https://www.flickr.com/photos/146817144@N02/
Purcelul mov presedinte = inflatie 500%
Avatar utilizator
133
 
Mesaje: 4861
Membru din: Joi 07 Apr 2016, 22:04

Re: Bucureştiul nou

Mesajde 133 » Dum 08 Noi 2020, 21:34

De prin oras.
Fişiere ataşate
P_20201108_132727.jpg
Intre Nasaud si Spataru Preda.
P_20201108_132731.jpg
P_20201108_132735.jpg
P_20201108_132738.jpg
P_20201108_132845.jpg
P_20201108_132855.jpg
P_20201108_135129.jpg
One Cotroceni din nou.
P_20201108_142240.jpg
P_20201108_142247.jpg
Multele cladiri noi din zona Grozavesti.
P_20201108_142352.jpg
P_20201108_143350.jpg
Langa SemaPark.
P_20201108_143429.jpg
P_20201108_143434.jpg
Peste garla azi tocmai s-a montat o macara noua, dar n-am mai facut un ocol pana acolo sa vad ce si cum. Cu alta ocazie.
P_20201108_143709.jpg
https://www.flickr.com/photos/146817144@N02/
Purcelul mov presedinte = inflatie 500%
Avatar utilizator
133
 
Mesaje: 4861
Membru din: Joi 07 Apr 2016, 22:04

Re: Bucureştiul nou

Mesajde 133 » Mar 10 Noi 2020, 20:18

Se pare ca si "fabrica de chibrituri" va fi istorie, cu totul. Deja s-au construit o groaza de blocuri pe strada asta chinuita, banda 1, trotuarul si toate colturile stradutelor adiacente sunt ocupate de masini parcate, daca se mai construiesc blocuri fara parcari suficiente o sa fie jale.
Fişiere ataşate
P_20201110_170939.jpg
P_20201110_171002.jpg
https://www.flickr.com/photos/146817144@N02/
Purcelul mov presedinte = inflatie 500%
Avatar utilizator
133
 
Mesaje: 4861
Membru din: Joi 07 Apr 2016, 22:04

Re: Bucureştiul nou

Mesajde 133 » Mie 11 Noi 2020, 22:15

De prin oras.
Fişiere ataşate
P_20201111_154130.jpg
Prospaturile de pe Fabrica de Glucoza sunt aproape gata. Partea proasta este ca au noroit in ultimul hal trotuarul.
P_20201111_154616.jpg
P_20201111_160718.jpg
One Vacarescu.
P_20201111_160924.jpg
Teren de tenis?
P_20201111_160930.jpg
Si rampa auto incalzita...
P_20201111_160942.jpg
Aproape gata si asta...
P_20201111_160946.jpg
Iar vis-a-vis... macarale.
https://www.flickr.com/photos/146817144@N02/
Purcelul mov presedinte = inflatie 500%
Avatar utilizator
133
 
Mesaje: 4861
Membru din: Joi 07 Apr 2016, 22:04

Re: Bucureştiul nou

Mesajde 133 » Joi 12 Noi 2020, 22:05

Pe Vasile Lascar si pe Viitorului, printre constructiile vechi tot rasar terenuri paraginite si maghernite demolabile sau in curs de demolare, ce sunt inlocuite de bloculete cu 4-5 etaje, ce atarna peste microtrotuar. Ba mai nou chiar si cladiri care nu sunt tocmai in ruine urmeaza sa fie inlocuite de constructii mai inalte.
Fişiere ataşate
P_20201112_161335.jpg
P_20201112_161349.jpg
ASTA se vrea inlocuita cu ce se propune in PUD. Dincolo de iedera este in perfecta stare.
P_20201112_161436.jpg
Tot prin zona... genul asta de peisaj este destul de prezent...
https://www.flickr.com/photos/146817144@N02/
Purcelul mov presedinte = inflatie 500%
Avatar utilizator
133
 
Mesaje: 4861
Membru din: Joi 07 Apr 2016, 22:04

Re: Bucureştiul nou

Mesajde 133 » Mar 17 Noi 2020, 22:21

Un update.
Fişiere ataşate
P_20201114_110902.jpg
Forte Partners, Serban Voda.
P_20201114_155018.jpg
Demolarea de pe Sos. Viilor.
P_20201114_155039.jpg
P_20201114_155141.jpg
Si vis-a-vis...
P_20201116_151934.jpg
One Cotroceni.
P_20201116_152205.jpg
P_20201116_175205.jpg
Sos. Progresului intre Nasaud si Spatarul Preda.
P_20201116_175210.jpg
P_20201116_175233.jpg
https://www.flickr.com/photos/146817144@N02/
Purcelul mov presedinte = inflatie 500%
Avatar utilizator
133
 
Mesaje: 4861
Membru din: Joi 07 Apr 2016, 22:04

Re: Bucureştiul nou

Mesajde 133 » Lun 23 Noi 2020, 22:47

De prin oras.
Fişiere ataşate
P_20201122_160424.jpg
Stadionul Giulesti.
P_20201122_160452.jpg
P_20201122_135741.jpg
Sos. Progresului intre Nasaud si Spatarul Preda.
P_20201122_135750.jpg
P_20201122_135756.jpg
P_20201122_135803.jpg
P_20201122_135809.jpg
P_20201122_135903.jpg
P_20201122_135912.jpg
P_20201122_135917.jpg
P_20201122_140746.jpg
Afi TechPark 2.
P_20201122_140751.jpg
P_20201122_140817.jpg
P_20201122_140821.jpg
P_20201122_140836.jpg
P_20201122_140839.jpg
P_20201122_152702.jpg
Pe la Virtutii-Ciurel.
P_20201122_152709.jpg
P_20201122_152830.jpg
P_20201122_163600.jpg
Expozitiei.
https://www.flickr.com/photos/146817144@N02/
Purcelul mov presedinte = inflatie 500%
Avatar utilizator
133
 
Mesaje: 4861
Membru din: Joi 07 Apr 2016, 22:04

Re: Bucureştiul nou

Mesajde 133 » Mar 01 Dec 2020, 20:14

Se construieste in :twisted: i. Pe de-o parte. Pe de alta parte in interiorul inelului principal in fondul locativ deja existent este o avalansa de for sale/rent cu iz de criza.
Fişiere ataşate
P_20201201_151622.jpg
De la Mosilor spre Romana... In spate e serviciul de ambulanta.
P_20201201_151711.jpg
P_20201201_151803.jpg
Daca se vand si proiecte neincepute...
P_20201201_151810.jpg
P_20201201_152048.jpg
Adio largiri de strazi! Trantite ca nuca in perete.
P_20201201_152157.jpg
Langa asta trebuie sa mai rasara una.
P_20201201_152312.jpg
P_20201201_152519.jpg
Aparent mai sunt si consolidari...
P_20201201_154010.jpg
Macara pana si pe Lascar Catariu/Ana Ipatescu!
P_20201201_155247.jpg
Noua sandrama Tiriac de pe Buzesti langa Piata Victoriei.
P_20201201_155249.jpg
P_20201201_161352.jpg
Pe la Basarab.
P_20201201_161434.jpg
P_20201201_163049.jpg
Cireasa de pe tort (sau bomboana de pe coliva), rezidens in "parcul" Grozavesti, vi-a-vis de arzatoarele de pacura de la CET!
https://www.flickr.com/photos/146817144@N02/
Purcelul mov presedinte = inflatie 500%
Avatar utilizator
133
 
Mesaje: 4861
Membru din: Joi 07 Apr 2016, 22:04

Re: Bucureştiul nou

Mesajde 133 » Dum 13 Dec 2020, 20:52

Stadionul Ghencea e cam gata. Ii mai lipseste racordul definitiv la energie electrica si... un POD peste mlastina din fata. :ugeek:
Fişiere ataşate
P_20201213_144114.jpg
P_20201213_144132.jpg
P_20201213_144145.jpg
Porcilor le place in noroi...
P_20201213_144152.jpg
P_20201213_144525.jpg
P_20201213_144545.jpg
P_20201213_144708.jpg
Asa arata racordul la... fibra optica... suprateran...
P_20201213_144715.jpg
https://www.flickr.com/photos/146817144@N02/
Purcelul mov presedinte = inflatie 500%
Avatar utilizator
133
 
Mesaje: 4861
Membru din: Joi 07 Apr 2016, 22:04

Re: Bucureştiul nou

Mesajde 133 » Lun 14 Dec 2020, 00:01

Siii... s-a elucidat misterul santierului de pe Sos. Progresului de la Nasaud spre Spatarul Preda. Rezidens... Banuiam de cand au inceput sa construiasca "showroom-ul" de la strada, acum e complet clar.
Fişiere ataşate
P_20201213_142735.jpg
P_20201213_142740.jpg
P_20201213_142742.jpg
https://www.flickr.com/photos/146817144@N02/
Purcelul mov presedinte = inflatie 500%
Avatar utilizator
133
 
Mesaje: 4861
Membru din: Joi 07 Apr 2016, 22:04

Re: Bucureştiul nou

Mesajde 133 » Joi 17 Dec 2020, 22:53

Ce ce ce ce face? Sta sa pice acoperisul Arenei Nationale. Cine si-a asumat afirmatia asta? Oare indivizii astia care alearga dupa "stiri" nu stiu ca afirmatiile sunt asumate si daca scoti porumbelu' tre' sa clocesti si oul? :evil:
L.E. A... asesoft tv... :evil:
https://www.flickr.com/photos/146817144@N02/
Purcelul mov presedinte = inflatie 500%
Avatar utilizator
133
 
Mesaje: 4861
Membru din: Joi 07 Apr 2016, 22:04

Re: Bucureştiul nou

Mesajde 133 » Mar 05 Ian 2021, 21:38

Inca o ruina istorica a iesit din peisaj, e vorba de sticlaria paralela cu Bd. Basarabia, in locul ei va rasari... rezidens, GreenPoint. Demolarile s-au lasat si cu amenda de la directia de mediu a politiei locale, este prima data cand am vazut asa ceva afisat public.
Oricum, pentru prima data din Bd. Basarabia se vede tot frontul stradal de la blocuri vechi de pe Sos. Vergului.
De asemenea si in zona sectorului industrial demolat de multi ani dintre Bd. 1 decembrie si Faur se face curatenie, se rade vegetatia spontana. Acolo se presupune ca trebuie sa rasara un Kaufland.
Fişiere ataşate
P_20210105_154617.jpg
Vedere din strada Sahighian.
P_20210105_154621.jpg
P_20210105_154637.jpg
P_20210105_154708.jpg
P_20210105_154753.jpg
P_20210105_154913.jpg
P_20210105_154919.jpg
P_20210105_154926.jpg
P_20210105_154955.jpg
Frontul stradal la Bd. Basarabia unde era triajul trenurilor spre Fabrica Titan s-a umplut de.. spalatorii auto...
P_20210105_155006.jpg
P_20210105_155009.jpg
P_20210105_155113.jpg
P_20210105_155225.jpg
P_20210105_155238.jpg
P_20210105_155325.jpg
P_20210105_155409.jpg
P_20210105_155443.jpg
P_20210105_155624.jpg
https://www.flickr.com/photos/146817144@N02/
Purcelul mov presedinte = inflatie 500%
Avatar utilizator
133
 
Mesaje: 4861
Membru din: Joi 07 Apr 2016, 22:04

Re: Bucureştiul nou

Mesajde 133 » Mar 05 Ian 2021, 21:47

Terenul unde ar trebui sa rasara Kaufland... De mentionat ca in coltul dinspre Faur Distrigaz lucra la ceva teava de gaz.
Fişiere ataşate
P_20210105_155103.jpg
P_20210105_155145.jpg
P_20210105_155209.jpg
P_20210105_155213.jpg
P_20210105_155258.jpg
P_20210105_155354.jpg
P_20210105_155359.jpg
https://www.flickr.com/photos/146817144@N02/
Purcelul mov presedinte = inflatie 500%
Avatar utilizator
133
 
Mesaje: 4861
Membru din: Joi 07 Apr 2016, 22:04

Re: Bucureştiul nou

Mesajde 133 » Joi 07 Ian 2021, 21:48

Stadionul Arcul de Triumf.
Fişiere ataşate
P_20210107_142507.jpg
P_20210107_142123.jpg
https://www.flickr.com/photos/146817144@N02/
Purcelul mov presedinte = inflatie 500%
Avatar utilizator
133
 
Mesaje: 4861
Membru din: Joi 07 Apr 2016, 22:04

Re: Bucureştiul nou

Mesajde 133 » Sâm 09 Ian 2021, 21:25

Sos. Mihai Bravu zona Penes Curcanul.
Fişiere ataşate
P_20210109_142057.jpg
P_20210109_142105.jpg
P_20210109_142355.jpg
P_20210109_142401.jpg
https://www.flickr.com/photos/146817144@N02/
Purcelul mov presedinte = inflatie 500%
Avatar utilizator
133
 
Mesaje: 4861
Membru din: Joi 07 Apr 2016, 22:04

Re: Bucureştiul nou

Mesajde 133 » Sâm 09 Ian 2021, 22:16

Str. Fizicienilor.
Fişiere ataşate
P_20210109_151235.jpg
P_20210109_151238.jpg
P_20210109_151331.jpg
https://www.flickr.com/photos/146817144@N02/
Purcelul mov presedinte = inflatie 500%
Avatar utilizator
133
 
Mesaje: 4861
Membru din: Joi 07 Apr 2016, 22:04

AnteriorUrmătorul

Înapoi la Discuţii generale

Cine este conectat

Utilizatorii ce navighează pe acest forum: Niciun utilizator înregistrat şi 3 vizitatori

Acest site foloseşte cookie-uri - Termeni şi condiţii de utilizare
Powered by Dr2005